Charmantes Stadthaus mit Potenzial
Objekt des Tages

















Objektart
Haus
Objekttyp
Stadthaus
Vermarktungsart
Kauf
PLZ
50858
Ort
Köln
ImmoNr
111-25
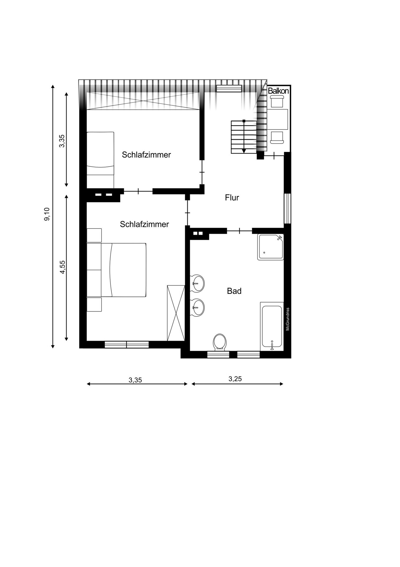
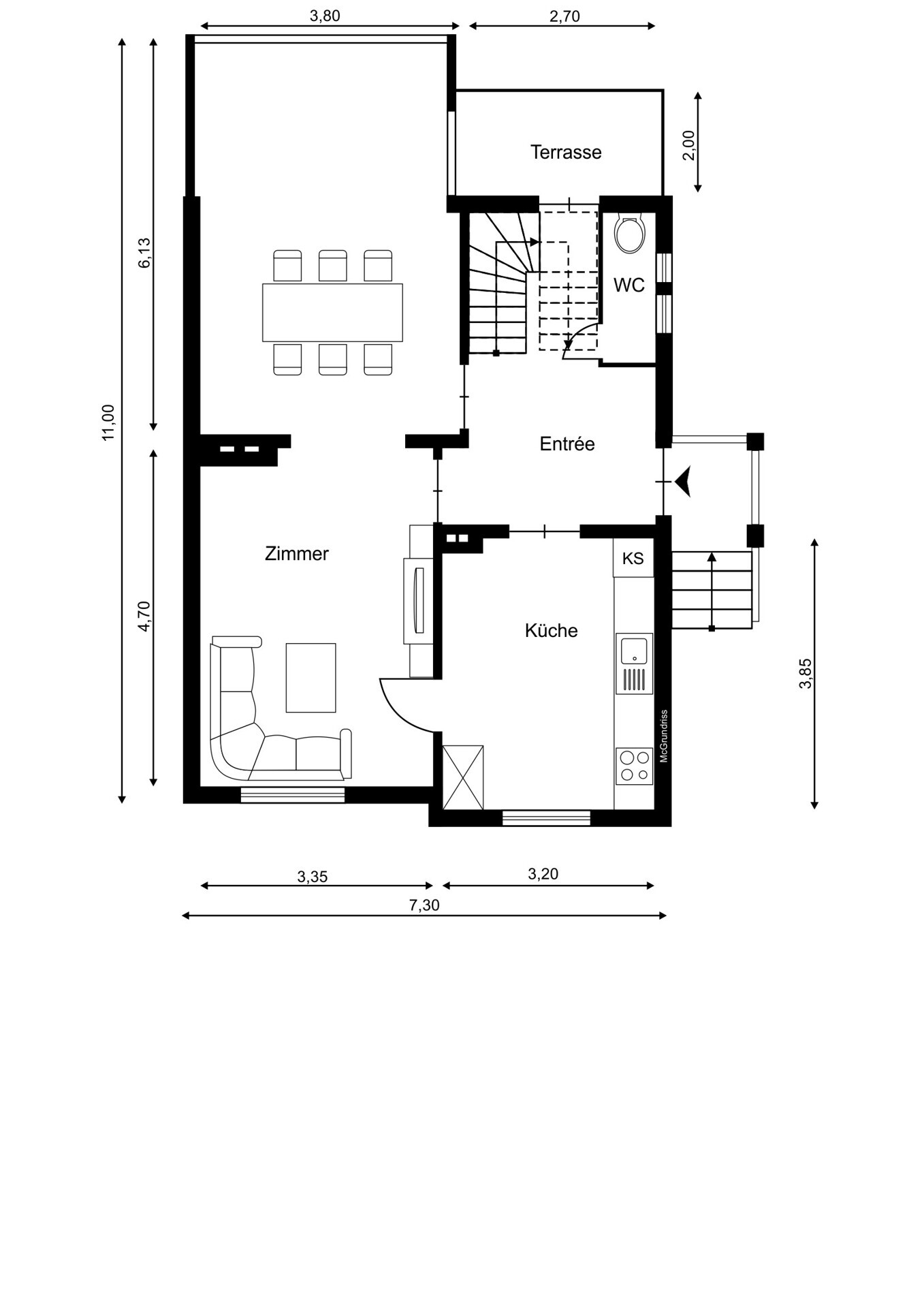
Wohnfläche
ca. 107 m²
Grundstücksgröße
ca. 401 m²
Nutzfläche
ca. 40 m²
Anzahl Zimmer
4
Anzahl Badezimmer
1
Kaufpreis
950.000,00 €
Außen-Provision
3,57% inkl. gesetzl. MwSt.
Beschreibung
Entdecken Sie dieses charmante Stadthaus in Köln-Junkersdorf, das historischen Altbaucharme mit vielversprechendem Potenzial für die individuelle Gestaltung vereint.Das im Jahr 1911 erbaute Haus bietet aktuell eine Wohnfläche von ca. 118 m² und umfasst 2 geräumige Schlafzimmer im Obergeschoss, die Ihnen viel Raum zur persönlichen Entfaltung bieten. Die beeindruckende Deckenhöhe von 3 Metern verleiht den Räumen ein luftiges und historisches Ambiente, das durch die originalen Details noch unterstrichen wird.
Lage
Dieses charmante Objekt befindet sich in Junkersdorf, einer der attraktivsten Wohnlagen der Stadt. Die Nachbarschaft zeichnet sich durch eine harmonische Mischung aus städtischem Flair und dörflichem Charme aus. In unmittelbarer Nähe finden sich zahlreiche Grünflächen und Parks, die zu erholsamen Spaziergängen und Freizeitaktivitäten einladen.Junkersdorf bietet eine exzellente Infrastruktur mit einer Vielzahl von Geschäften des täglichen Bedarfs, Restaurants und Cafés, die bequem zu Fuß erreichbar sind. Zudem ist der Stadtteil hervorragend an das öffentliche Verkehrsnetz angebunden, sodass die Kölner Innenstadt sowie umliegende Stadtteile schnell und unkompliziert zu erreichen sind. Schulen, Kindergärten und diverse Freizeiteinrichtungen befinden sich ebenfalls in der näheren Umgebung, was diesen Standort besonders attraktiv für Familien macht.
Dank der verkehrsgünstigen Lage sind wichtige Autobahnanbindungen ebenfalls rasch zu erreichen, was Junkersdorf nicht nur für Pendler, sondern auch für alle, die eine exzellente Anbindung schätzen, zu einer bevorzugten Wohnlage macht.
Energieausweis
0
A+
25
A
50
B
75
C
100
D
125
E
150
F
175
G
200
H
>200
Baujahr
1911
Energieausweis
Bedarfsausweis
Energieausweis gültig bis
12.08.2035
Energieeffizienzklasse
H
wesentlicher Energieträger
Gas
Endenergiebedarf
434,4 kWh/(m²a)
Ausstattung
Dieses renovierungsbedürftige Anwesen eröffnet Ihnen die Möglichkeit, Ihren persönlichen Wohntraum zu verwirklichen und die vorhandene Substanz liebevoll zu modernisieren. Der wunderschöne Garten, der zum Verweilen und Entspannen einlädt, erstreckt sich auf einem großzügigen Grundstück von ca. 401 m². Zudem ist die Immobilie voll unterkellert. Ein Ausbau in den oberen Etagen ist in den Nachbarobjekten bereits realisiert worden.Erleben Sie die einmalige Gelegenheit, in einem charmanten Haus mit Geschichte zu wohnen, und erschaffen Sie Ihr persönliches Wohnerlebnis im Herzen von Köln.
Ansprechpartner
Herr Sven Hartwig
FEINSINN IMMOBILIEN
Gleueler Straße 298
50935 Köln
Telefon1
0172 - 2063833
mobile
0172 - 2063833
Email
hartwig@feinsinn-immobilien.de
Pages: 1